1
Описание запроса
2
Контактные данные

Что вам нужно?

Опишите товар или услугу, которую вы ищете

Ваши контактные данные

Мы свяжемся с вами в ближайшее время

Запрос отправлен!

Спасибо! Мы свяжемся с вами в ближайшее время с лучшими предложениями.

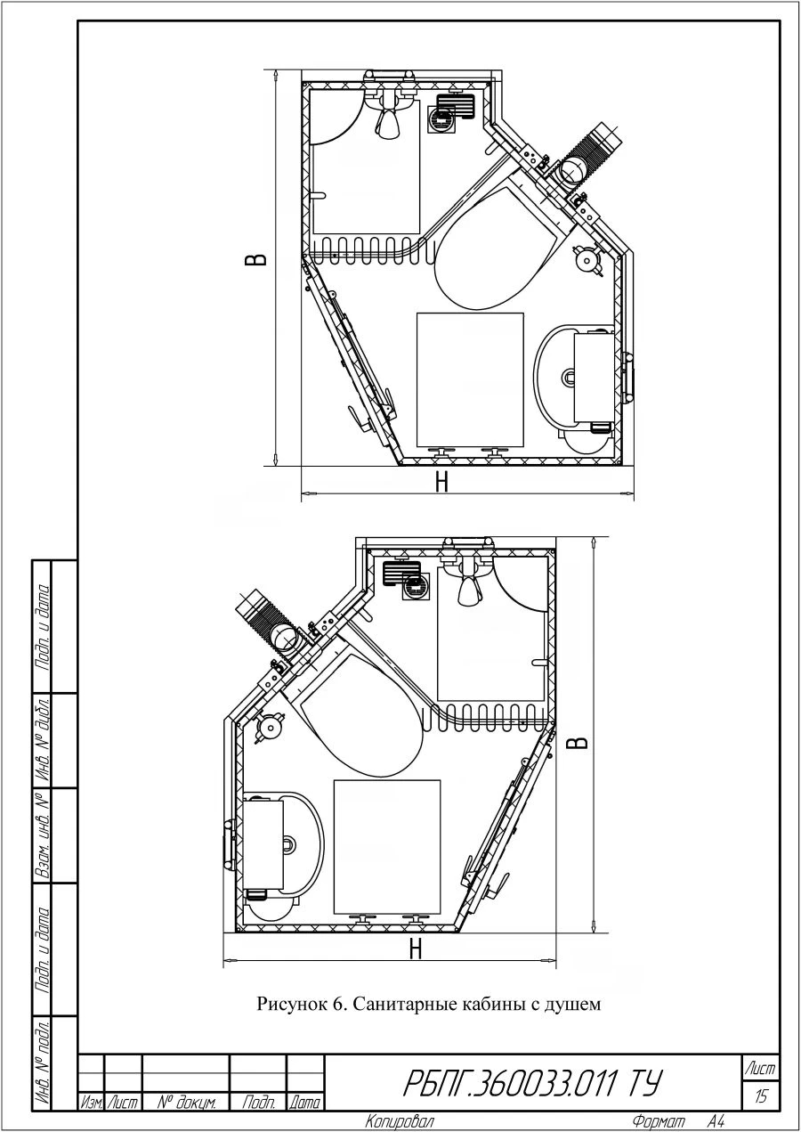
Модульные санитарные блоки

Модульные санитарные блоки

$1,800 - $7,200 USD
MOQ: 1 pieces

Ключевые характеристики

Высота в свету, не менее: 2100 мм
Дверь класса В-15, размер в свету: 1800 мм
Питание от судовой сети: 230 10[3*] м[3*]
Габаритная высота санитарных блоков не более: 2400 мм

Описание

Модульные санитарные блоки предназначены для санитарно-гигиенических потребностей людей. Устанавливаются санитарные блоки в жилых и служебных помещениях судов, кораблей и других плавсредств.Модульные санитарные блоки разрабатываются и изготавливаются с учетом требований проекта судна. Возможна поставка в разобранном виде для дальнейшей сборки на судне. Также возможны исполнения под вакуумные и гравитационные системы сточных вод.Основания санитарных блоков изготовлены из стали и представляют собой прочную непроницаемую конструкцию, имеют регулируемые ножки, которые позволяют производить выравнивание, стены и подволок собираются из сэндвич-панелей нашего производства с декоративным покрытием лицевой поверхности или наненесенным полимерным покрытием.Пол внутри санитарного блока имеет водонепроницаемое, нескользящее, износоустойчивое, декоративное покрытие. Конструкция пола обеспечивает уклон к шпигату для возможности стока воды.Поддон в районе душа является частью основного поддона.

Похожие товары

Preston Modular Sofa System - Versatile Design Module

Модуль ПРЕСТОН У

$900-$3,000 USD
Industrial equipment
Factory direct from Russia
ООО "КОЖПРОММЕБЕЛЬ" 🇷🇺
Brighton Modular System U - Versatile Home Collection

Модуль БРАЙТОН У

$900-$3,000 USD
Industrial equipment
Factory direct from Russia
ООО "КОЖПРОММЕБЕЛЬ" 🇷🇺
Soft Module Furniture Section 35

Мягкий модуль (Мебельная секция 35)

$90-$300 USD
Industrial equipment
Factory direct from Russia
ООО "ОМПК" 🇷🇺
Soft Cube Modules - Versatile Seating System

Модули мягкие серии «КУБ»

$210-$600 USD
Industrial equipment
Factory direct from Russia
ООО "ЛИДЕР" 🇷🇺
Soft Module (Right or Left Furniture Section 4)

Мягкий модуль (Мебельная секция правая или левая 4)

$150-$480 USD
Industrial equipment
Factory direct from Russia
ООО "ОМПК" 🇷🇺
Modular Sofas DM - Versatile Comfort Solutions

Диваны модульные, ДМ

$900-$3,600 USD
Industrial equipment
Factory direct from Russia
АО "БЛОК" 🇷🇺
Modular Sofa, Orli Model

Диван модульный, модель Орли

$360-$1,800 USD
Industrial equipment
Factory direct from Russia
ООО "ИНДИГОРАН МЕБЕЛЬ" 🇷🇺
Ergonomic Soft Seating Sofa L9 Style L9-2R2

Диван серии L9 СТАЙЛ L9-2R2

$270-$840 USD
Industrial equipment
Factory direct from Russia
ООО "СИ-ЛАЙН" 🇷🇺
Soft Seating Sofa Series L24 KIDDO L24-2D-1

Диван серии L24 КИДДО L24-2D-1

$270-$840 USD
Industrial equipment
Factory direct from Russia
ООО "СИ-ЛАЙН" 🇷🇺
Geometry Series L5-1V Soft Seating Sofa

Диван серии L5 ГЕОМЕТРИЯ L5-1V

$270-$840 USD
Industrial equipment
Factory direct from Russia
ООО "СИ-ЛАЙН" 🇷🇺
Modular Dispatch Console Series WALL

Модульная диспетчерская консоль серии WALL

$9,000-$36,000 USD
Industrial equipment
Factory direct from Russia
ООО "ДИССОЛ" 🇷🇺
Tetris Modular Sofa D-3 - Versatile and Stylish Seating Solution

Диваны Tetris Module D-3

$210-$600 USD
Industrial equipment
Factory direct from Russia
ООО "ЗЕБРАНО" 🇷🇺
Soft Seating Furniture Element

Мягкая мебель Элемент

$900-$3,000 USD
Industrial equipment
Factory direct from Russia
ООО "ЮНИСТАЙЛ" 🇷🇺
Corner Sofa Montreal with Metal Frame

Диван угловой. Модель: Монреаль

$450-$1,800 USD
Industrial equipment
Factory direct from Russia
ООО КОМПАНИЯ "ЭЛИТ И КО" 🇷🇺
Modular Sofa Rockford - Versatile Living Room Design

Диван модульный, модель Рокфорд

$600-$2,400 USD
Industrial equipment
Factory direct from Russia
ООО "ИНДИГОРАН МЕБЕЛЬ" 🇷🇺
Tetris Module D-1 Sofa – Stylish and Versatile Furniture

Диваны Tetris Module D-1

$90-$300 USD
Industrial equipment
Factory direct from Russia
ООО "ЗЕБРАНО" 🇷🇺
Soft Module Furniture Section Right or Left 41

Мягкий модуль (Мебельная секция правая или левая 41)

$150-$480 USD
Industrial equipment
Factory direct from Russia
ООО "ОМПК" 🇷🇺
Double-Sided KAFI Series Furniture - Chair K-1 / Two-Seater Sofa D-2 / Three-Seater Sofa D-3

Мебель серии КАФФИ - двусторонний

$360-$1,800 USD
Industrial equipment
Factory direct from Russia
ООО "СОФИЯ" 🇷🇺
Soft Seating Sofa Series L10 SPACE L10-10

Диван серии L10 СПЕЙС L10-10

$360-$1,200 USD
Industrial equipment
Factory direct from Russia
ООО "СИ-ЛАЙН" 🇷🇺
Soft Seating Sofa Series L19 FUCHE L19-2M

Диван серии L19 ФЬЮЧЕ L19-2M

$900-$3,000 USD
Industrial equipment
Factory direct from Russia
ООО "СИ-ЛАЙН" 🇷🇺
Запрос через Telegram
Связанные категории